8821 Hollis Court Boulevard Offered at $929,000 - Queens Village, NY 11427
3 Bedrooms
2.5 Bathrooms
1925 Year Built
32x120 SqFt Lot
New York City #29 School District
911264 MLS
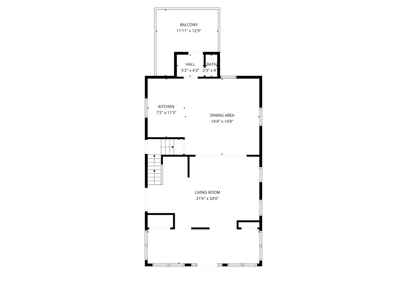
Welcome to this beautifully maintained home in the desirable Jamaica Estates section of Hollis. Offering 3 spacious bedrooms and 2.5 bathrooms, this residence showcases modern updates throughout, including energy-efficient solar panels with a transferable service contract and an approximate $1,000 annual cash-back benefit.
Set on a 3,840 sq. ft. lot, the home features a private backyard ideal for entertaining, an enclosed screened-in porch, and a full basement providing additional living space or storage. The updated kitchen boasts marble countertops with a center island, tiled floors, and stainless steel appliances. Tiled main living areas and lower level provide easy maintenance, while the second floor features beautiful hardwood floors. There is ample storage throughout, including a large pull-down attic.
Additional highlights include a one-car garage and a private driveway with generous parking. Conveniently located in School District #29, close to shopping, dining, transportation, and neighborhood amenities, this property blends comfort, convenience, and sustainability in one of Queens’ most sought-after communities.

























